MOA ART MUSEUM
At the opening of the Hakone Gallery of Art in June 1952, Master Jinsai disclosed his purpose in establishing an art museum. “Essentially,” he said, “Japan’s mission is to contribute to the welfare of the world through the medium of beauty. For this purpose, I am constructing in the scenic areas of Atami and Hakone models of an earthly paradise, and within these grounds I will establish museums.” At that time, to the surprise of many, he proclaimed his intention to establish in Atami an art museum of the highest international caliber.
Master Jinsai taught that outstanding works of art not only deepen one’s sentiments and cultivate one’s personality, but they also purify the spirit, guiding one to happiness. The many people who look up to Meishu-Sama have taken his determination to heart. After ten years of planning and construction, the completion in 1982 of the ultramodern MOA Museum of Art, incorporating the latest in museum design and technology, brings to fruition Master Jinsai’s dream of a world-class museum in Atami in time to honor the centennial of his birth.
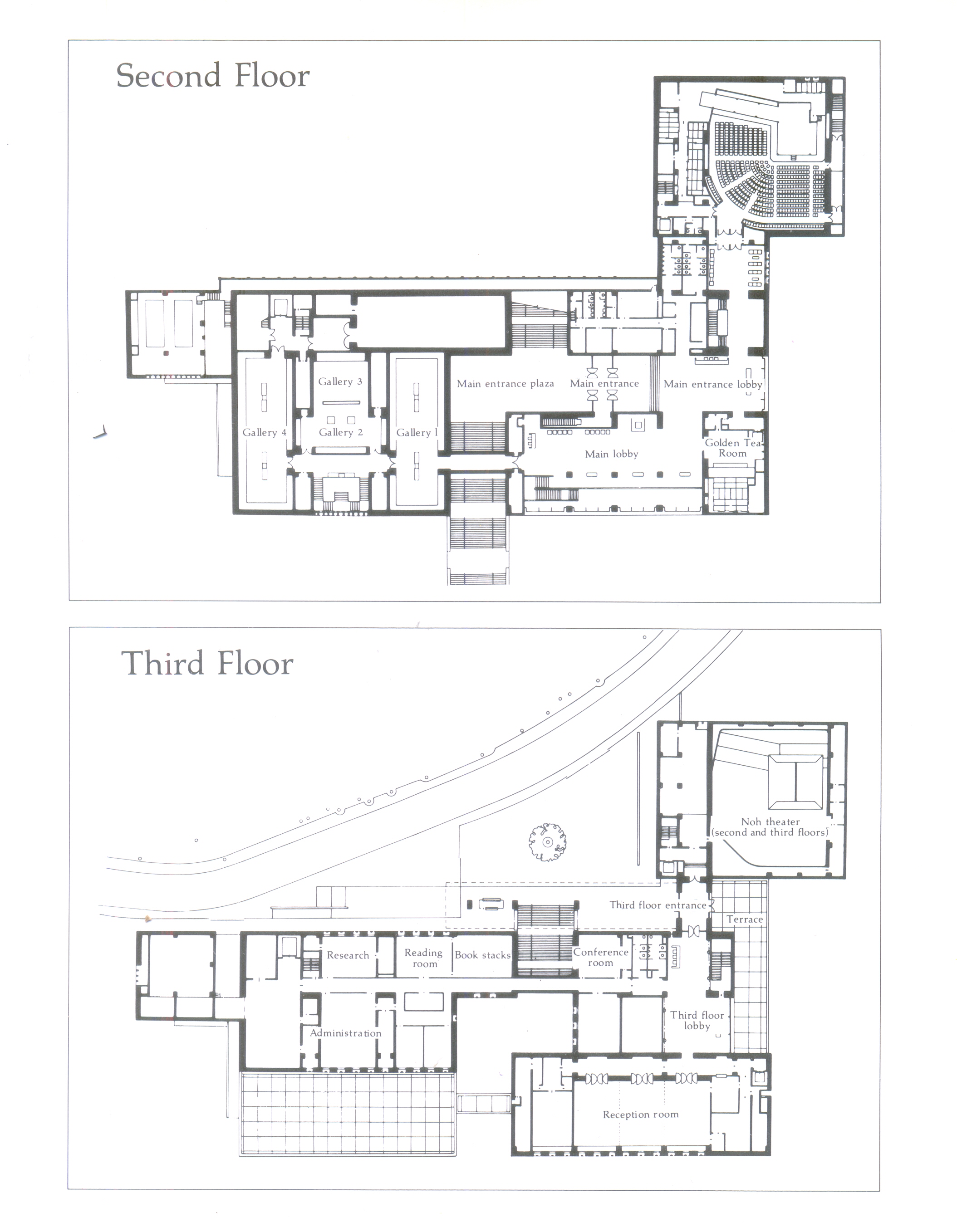
The main building of the MOA Museum of Art consists of two wings. One wing is composed chiefly of galleries with display cases and of storage areas. The second wing includes lobbies and other public areas, a room for the tea ceremony, a Noh theater, and a restaurant. The two wings, connected by passageways, stand parallel on an east-west axis. The exterior design of the museum imparts a simple, functional beauty that harmonizes with the verdant surroundings.
The entry plaza is connected to the main building by underground escalators. The tunnel-escalator system does not simply convey visitors to the main museum building but, through its environment, prepares them for the experience of viewing beautiful art objects.
The escalator tunnel is designed to soften the severity of the long slope and relieve the monotony of the tunnel. Surging ripples decorate the ceiling, and the floor and walls are finished in marble. Lighting, temperature, humidity, and the air flow have been synthesized to create aesthetic space for visitors on their way to the main building of the museum.
On the basis of a geological survey, it was decided to construct the tunnel by excavating and refilling the site after the escalator was completed. The entire course of the tunnel was firmly anchored for protection against earthquakes. Some 150 reinforced concrete pillars 1.6 meters in diameter and 16 meters in length were sunk into the ground at intervals of three meters along both sides of the tunnel course and were secured to the andesite bedrock for reinforcement.
The tunnel structure, a concrete box about one meter thick, was fixed firmly on the pillars to ensure the utmost safety. A botanical survey was conducted on the area prior to excavation so that the environment could be restored afterward.
Escalator Summary
Design and construction: Kajima Corporation, Tokyo
Construction period: November 1977 – June 1981
Structure:
Total area: 3,348 square meters
Total length: 203.5 meters
Total rise: 48.5 meters
Mean slope: 14 degrees
Tunnel width: 7.8 meters
Tunnel height: 5.3 meters
Total area of circular hall: 352.8 square meters
Diameter of circular hall: 21.8 meters
Height of circular hall: 10.8 meters
Entrance
The main building boasts a simple yet striking design, consisting of two wings which are connected by a suspended corridor. The exterior walls are in Indian sandstone that adds an elegant touch to the overall building design. Surrounded by rich greenery, the building is well-integrated into the surrounding natural landscape. The building has received the Japan Constructors Association Award.
The waterfall at the left of the tunnel entrance is about 13 meters wide and 7.7 meters in height. The waterfall produced by circulating three tons of water per minute. The stone course of the waterfall is granite quarried o the island of Kurahashijima in Hiroshima Prefecture which has been designed to appear its best with the unworked face exposed.

Main Lobby
The spacious main lobby enjoys plenty of natural light coming through a 32-meter-wide floor-to-ceiling window. A two-level atrium on the window side commands a spectacular view over Sagami bay 260 meters below. On fine days, visitors can enjoy the views of capes and peninsulas on both sides, and even as far as Boso peninsula across the sea. The Hatsushima island adds a scenic accent in the middle of this panoramic view, together with the Izu Oshima, which shows itself in distance under a clear sky.


The Tunnel Passage
The museum’s entrance is located 60 meters below the main building, and seven flights of escalators, 200 meters in total length, take visitors to the museum. The lighting inside the tunnel constantly change its colors, staging a transitional journey to be enjoyed. Midway through the tunnel is the circular hall, presenting a projection mapping of the largest kaleidoscope in Japan, produced by artists Mitsuru and Yuriko Yoda. To protect the environment and preserve the scenic beauty in the vicinity, the escalator passage was installed underground, which involved excavating the hill side and restoring the surface after the installation work.
The ceiling of the passage is made of fiber-glass-reinforced cement sprayed onto a permanent framework. Together the shape of the arch and the form of the stairs produce the best acoustics and lessen any fear a visitor may have when looking down the stairway from above. The beauty of the rhythmic, continuous ripples which converge at each landing, creates the fantasy of a different world for the visitor.
The walls are surfaced with a material in which fine glass beads have been fired to melting point and polished. Speakers are concealed behind black grilles spaced along the walls. The stairs are made of the same granite used for the entrance waterfall.
The longest of the modular, energy-saving escalators on either side of the stairway are thirty meters long. Recessed lighting fixtures along the tunnel walls contain controlled-color fluorescent lamps.


The Circular Hall
The circular hall located three-quarters of the way through the tunnel course is designed to serve several purposes and is equipped to produce pleasing environments of light and sound. Like the tunnel ceiling, its ceiling is made of fiber-glass-reinforced cement, which has been sprayed onto 230 individual panels that radiate from the top of the domed ceiling. The stone wall is chiefly Italian marble, with some Portuguese marble, and was fitted to produce an uninterrupted pattern. Approximately 20 meters in diameter and 10 meters in height, this round hall has a dome ceiling and its walls are mainly in Italian marble stones so that the grains of each member are seamlessly joined.
The tortoise-shell mosaic on the floor is created from ten different kinds of marble from six countries-Italy, Portugal, India, Iran, Cuba, and Greece. The fossils seen in some of the marble speak of the great age of the stones and their homelands. Controlled-color flourescent lamps installed in the apex of the dome and just above the marble wall can modify the lighting atmosphere of the hall. In addition forty-six specialized fixtures installed in the ceiling, atop the wall, and in the center of the floor can be used to project slides or different light patterns on the hall ceiling. For audio effects, twenty sets of high-performance speakers, twenty times more responsive than ordinary industrial speakers, are installed inside the wall. Radiant-heating panels installed under the marble floor can maintain temperatures up to twenty-six degrees Celsius.
The most notable feature of this circular hall is the Japan’s largest kaleidoscope projected on the ceiling, created by award-winning kaleidoscope artists Mitsuru and Yuriko Yoda. The couple is Japan’s first artists who won the Brewster Kaleidoscope Society Grand Prix two consecutive years (2005 and 2006). The accompanying music was composed by Yuriko Nakamura specially for museum’s projection.


Moore Plaza
The plaza at the upper end of the tunnel system is named for the outstanding twentieth-century English sculptor Henry Moore, who created the magnificent bronze work, King and Queen, that graces the plaza. On fine days visitors can enter the museum via Moore Plaza and enjoy the beauty of nature and a splendid view of Sagami Bay.
Situated at 250 meters above sea level, the square commands a great panoramic view over Sagami bay. Especially magnificent is the view in April, when the cherry orchard on the hill side is in full bloom.


Museum Summary
Design and construction: Takenaka Construction Company, Osaka.
Construction period: November 1977 – December 1981.
Structure:
Foundation area: 5,471 square meters
Total floor space: 13,898 square meters
Galleries: 1,992 square meters
Storage: 718 square meters
Main lobby: 392 square meters
Restaurant: 365 square meters (200 seats)
Reception room: 310 square meters
Noh theater: 455 square meters (501 seats)
Construction: Reinforced concrete
Exterior and interior finishing:
Roof: waterproof asphalt-resin coating; outer walls and floors: Indian sandstone; gallery floors: rubber tile; storeroom floors, walls, and ceilings: finished wood; main lobby floor: marble; main lobby walls: Indian sandstone; ceilings: fabric wall covering
Indian Sandstone
Mokichi Okada taught that beauty is to be expressed in form in order to uplift viewers’ spirits through their eyes. Okada desired to mate the beauty of nature with human artistry. Indian sandstone was selected for the museum’s exterior walls because of its elegant appearance. With its soft grain, color, and rich texture it blends well with the natural surroundings, and this accords with Okada’s philosophy on beauty. Studies of historic buildings in India, a survey of the actual use of this sandstone in Japan, and many visits to the quarry site on the Deccan Plateau were made to ensure color consistency of the stones.

Gallery Space
The basic functions of a museum are preservation, conservation, and display. Attention to these functions must be balanced, and display must also give consideration to viewing ease, optimum illumination, and the appropriate diffusion of illumination. After careful planning, study, and use simulations, a unique exhibition system responsive to these requirements was developed. For instance, to improve exhibition efficiency, a ratio of three to one is maintained between the gallery lighting and case lighting to prevent glass reflection. The display cases are of two standard types 50 that they can be used for all the objects in the collection. Display panels on tracks can be folded out and set in place to cover the display cases 50 that a new exhibition can be mounted without disturbing the old one. The museum has the versatility required of a modern museum that makes it possible to organize and mount large-scale exhibitions.
The museum has six galleries that are used Japanese traditional materials and techniques. Among them, the Gallery 2 is designated for exhibiting the “Tea-leaf jar with a design of wisteria,” a National Treasure. The walls are coated with a glossy dark black plaster known as Edoguro, finished to perfection by the finest artisans, further enhancing the beauty of Nonomura Ninsei’s Jar. One has a display alcove with several hundred year-old gyoja cedar decorating the front of the raised floor. The design of spaces aimed at highlighting the beauty of art objects and the use of materials employing traditional techniques will give the galleries a surprising look of newness that will never grow old.

Storage
An important role of any museum is to preserve art objects in the best condition. The museum’s storerooms are lined with Japanese cypress and cherry wood, since it is recognized that wood contributes to an optimum storage environment because it absorbs atmospheric moisture and as a poor conductor of heat is not subject to great temperature fluctuations. The storerooms are also equipped with the latest facilities for temperature and humidity control.
To maintain the rooms at a constant temperature of twenty degrees Celsius with sixty percent humidity, an independent air-conditioning and heating unit has been installed, and there is an emergency power plant for use in the event of a power failure. The storage areas can also draw electricity from the emergency equipment in the main building. Various air filters are installed to eliminate sulfur dioxide, hydrogen sulfide, ozone, and other gases, as well as bacteria, pollen, and airborne sea salt, all of which are damaging to art works. For fighting fire, the most dangerous enemy of art objects, an extinguishing system utilizing halon gas is installed. To prevent fires caused by short circuits, electrical power for the storage areas can be cut off when people are not using them.
Special Facilities
Escalators. When the weather is fine, visitors can climb the Indian-sandstone stairway from Moore Plaza to enter the main building. But escalators beneath this stairway, connected to the escalators from the entry plaza, lead directly to the main building entrance for the convenience of children and the elderly and for use in inclement weather.
Aids for the handicapped. Each floor of the museum is completely flat and the placement of facilities has been designed in consideration of crowd flow. Special elevators and restrooms are provided for the disabled visitor.
Video Booths and Audio-visual Equipment. In order to fulfill its role as a modern museum and to contribute to the development of education and, at the same time, simply to help visitors appreciate the art objects, the museum is equipped with various audio-visual equipment appropriate to an age of advanced cable and audio technology.
Noh Theater
The main-lobby wing houses a Noh theater with seating for 501 people. This theater has been designed so that everyone, including children and the elderly, may be able to appreciate the Noh drama in the best possible environment. Besides the customary air-conditioning and heating system, the theater is equipped with a radiant-heating system in the floor and with simultaneous interpreting facilities. In such optimum conditions, it is hoped that the Noh drama, an art form of simplicity that can express a subtle and profound atmosphere in refined elegance, will gain attenion on an international scale.
this Noh theater is made in a traditional way, with a cedar-bark-thatched roof in the hip-and-gable style and cedar is used for the stage throughout. The kagami-ita (the stage wall) was painted by Matsuno Hideyo, a renowned artist of Japanese painting. The theater has been built to showcase the exquisite traditional Japanese performing art Noh, and it hosts performances of different schools of Noh regularly. The stage pillars are removable, allowing the space to be used for a variety of performances, recitals and art-related and other lectures. It also has facilities for simultaneous interpretation, and can be used for international conferences and symposia.


The Ippaku-an Teahouse and Garden
A teahouse with a sheet-copper roof stands in the shade of pine trees in a Japanese garden adjacent to the section of the museum that houses the Noh theater. The teahouse, built of Japanese red pine, is designed to be acceptable to all schools of the tea ceremony and for either large or intimate tea ceremonies. A room for tea ceremony fitted with benches can accommodate hundreds of guests at one time. The teahouse is built in the rustic style and contains both small, hermitage-style rooms and large, reception-style rooms, all independent of one another.
Set among pine trees and bamboo graves, the teahouse commands views of Mount Iwato and the opulent splendor of the Pacific Ocean, with Hatsushima and Oshima islands in the distance. These elements of nature are skillfully integrated in the design of the teahouse and tea garden. The garden and teahouse, together with the museum and Noh theater, assure the visitor of surroundings in which to appreciate an Oriental atmosphere and the spirit of Japan.


The Golden Tea Room
The Golden Tea Room is a special feature of the museum. This room is a faithful replica of the Golden Tea Room built by the great general Toyotomi Hideyoshi in 1586, when the took a portable golden tea room to the Imperial Palace in Kyoto in order to hold a tea ceremony for Emperor Ogimachi. Subsequently in 1587, Hideyoshi used this golden tea room at the famous Grand Kitano Tea Ceremony, and it is known that in 1592 he had it brought from Osaka to Nagoya Castle in Hizen (today’s Saga prefecture), where Hideyoshi was commanding his expeditionary force to the Korean peninsula. It is thought that the original tea room was lost in the fall of Osaka Castle.
The replica here accords with descriptions and drawings in extant records of this imperial tea ceremony.
A visit to the tea room is a chance to appreciate at first hand the aesthetics of the Momoyama period with its contrasting features of the dazzling rich splendor of the golden world with its tranquil, restrained simplicity of the wabi style of Sukiya architecture.
This replica was created based on the written accounts of court nobles, military commanders, tea masters and foreign missionaries, and under the supervision of the top authority in the Sukiya style of architecture Dr Sutemi Horiguchi.
The golden tea implements have been recreated based on the set of tea utensils (black urushi daisu shelf and bronze implements from China) held by Sen no Rikyu and kept at Omotesenke tea house Fushin’an. Approximately 50 grams of solid gold is used in these implements.
The shoji doors are applied with crimson silk with watermarked paulownia patterns, Hideyoshi’s favorite, modeled on the design used in the Koshoin of Katsura Rikyu Imperial Villa.
The tatami mats in deep crimson are recreated based on the battle surcoats worn by warriors of the time.


Foundation
The foundation of the museum rests on firm andesite bedrock some thirty meters below ground. One hundred reinforced concrete pillars one and a half to two meters in diameter were sunk into the ground down to the andesite to support the museum building. The foundation system has been designed to withstand the strongest earthquake that has been forecast for this area.
TACNES® System
This recently developed air-conditioning system uses only two-thirds the electrical energy that conventional systems require. By recycling the heat in the air, it eliminates the need for a boiler, which so often contaminates its surroundings. This computerized system adjusts itself to changing climatic conditions and maintains the correct atmospheric environment. Such atmospheric control serves to preserve the art objects in the best condition and also provides a comfortable environment in the galleries for the viewers.
OTHERS
Korin’s Residence (reconstruction)
This reconstruction was based on precious documents from the Konishi Archive, including Ogata Korin’s own drawings, the technical specifications of the original carpenter, and blueprints of the tea room. In 1712, Ogata Korin built a residence on Shinmachi-dori in Kyoto, and spent the last five years of his life there. It was in the atelier on the upper floor that it is thought he painted his finest masterpiece, the National Treasure “Red and White Plum Blossoms” screen.
Covering an area of almost 300 m2, this reconstruction is a precious document of the traditional machiya style of house from the Edo period. The Residence contains two tea rooms, one five-and-half-mat size and the other three-mat. The latter “Seisei-an” was named after Korin’s pen name, and the sign for the room was created by Japanese artist Okumura Togyu. The reconstruction was supervised by a great authority on the Sukiya style of architecture Dr Sutemi Horiguchi.


Tea Garden
Scattered around the tea garden are the Ippaku-an and Shotei tea houses, the reconstruction of Korin’s Residence, the Katagirimon gate, along with other traditional stone artworks. The garden itself is also beautiful, with the plants reflecting the changing seasons, including of course the spring greenery and the autumn colours.
Teahouse Shotei
Tadasumi Iki (also known as Sanensai), the head of chief retainers of Ikeda Domain in Bizen, was a great master of the tea ceremony and indulged his later years in a tea ceremony. He had over 20 teahouses in his suburban residence in Okayama and this teahouse is one of the tearooms called “大爐の間(Dairo-no-ma meaning a tea-room with large finance)”relocated to our Museum tea garden. It was named Sho-te by referring to our museum collection, “Writing box(Suzuribako) with Woodcutter in the style of Hon’ami Koetsu (Important Cultural Property). Sho(樵) or Kikori(樵夫) means woodcutter in Japanese and there was a woodcutter painted on the “fusuma” (sliding screen) of the tearoom which was the same design on the cover of the writing box.


Katagirimon Gate
Katsumoto Katagiri, known to be one of the Seven Spears of Shizugatake and a chief retainer of the Toyotomi family, was involved in the construction of Yakushiji Temple as fushin bugyo (administrator of civil engineering) and this gate was the main gate of the lodging house which he used to live in. It is said that Katsumoto used to pass this gate on horseback. The gate was relocated to the Jiko-in Temple in Nara Prefecture, then was moved later in 1916 to the site of Mitsui family bettei Shiroyama-so (villa) in Ooiso-machi Kanagawa Prefecture.


Karamon Gate
This Kara-mon Gate was formerly located within the site of Mitsui family bettei (villa) Shiroyama-so.


Chronology
1935 – Master Jinsai expresses his intention to establish a museum
May 1944 – Master Jinsai moves from Tokyo to Hakone and begins construction of the Shinsen-kyo
April 1946 – Construction begins on the Atami Zuiun-kyo
January 1, 1952 – Okada announces his intention to build a museum in the Zuiun-kyo
June 15, 1952 – Opening of the Hakone Gallery of Art
January 1, 1957 – Opening of the Atami Art Museum in temporary structures within the Zuiun-kyo
October 1971 – Formation of the Art Museum Construction Planning Committee
September 1972 – Acquisition of the museum site
April 1973 – Overseas Museum Investigation Committee completes tour of nine European countries and the United States
July 1973 – Museum site named Phoenix Hill (Hoo-dai)
January 18, 1976 – Building-construction access road begun
May 1, 1976 – Ground-breaking ceremony for museum
September 30, 1977 – Museum construction commences
September 20, 1978 – Begin construction of steel frame
June 15, 1979 – Ridge-pole raising ceremony
December 1981 – Construction of main building completed; building presented to owners
January 11, 1982 – Opening of the MOA Museum of Art
































